NEW LISTINGS
OFFICE SPACE FOR RENT
For rent in Rävala pst 5 Business Building, a spacious 303.9 m² office space, located on the second floor of the building, with a view towards Rävala pst.
Price: 3 950.7 EUR ( 13 EUR / m2) Land area: 0 m2 / Object area: 303.9 m2
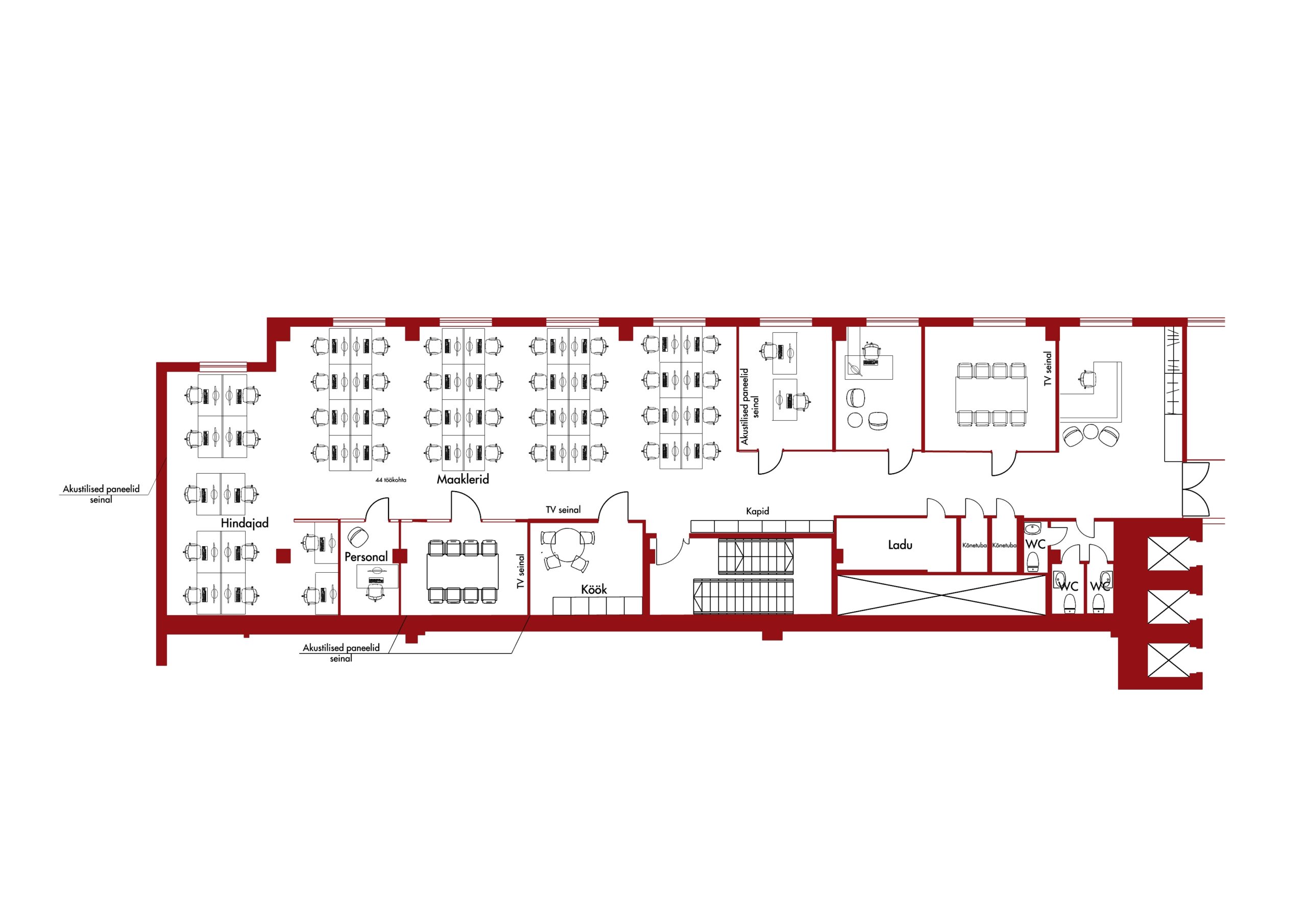
OFFICE SPACE FOR RENT
Location: Metalli tn 3, Tallinn.
Size: 331,1 m² (including 127 m² of open office space - ideal for hatching big ideas!). Floor: 3rd floor - high and far from everyday life! Parking: In front of the building and in the parking lot - parking spaces are NOT Pokémon, you do NOT have to look for them! Interior: Stylish designer furniture - because your chair should be more comfortable than your sofa!
PROPERTY FOR SALE
STRATEGIC PRODUCTION AND LOGISTICS PROPERTY IN PALDISKI — Peetri 9
A location that works for you! Situated right next to the Paldiski North Harbour, this 15,812 m² property with a modern production building (1,155.5 m²) offers a unique combination of sea, rail, and road connections. High power capacity, flexible expansion opportunities, and ready-to-use technical infrastructure give you a clear competitive advantage!
APARTMENT FOR SALE
Looking for a cozy and comfortable home in a green and peaceful neighborhood? A bright and well-planned studio apartment is now available for sale in the highly sought-after Nõmme district.
HOW WILL THE PRICE OF YOUR PROPERTY DEVELOP?
The formation of real estate prices is a multifaceted process that depends on many factors. Whether it is an apartment, house or plot of land, the market price is influenced by the characteristics of the object itself, as well as the economic situation, social conditions and opportunities. Let's take a closer look at the main factors that determine the price of real estate.
1. Location Location is the most important factor in determining the price of real estate. Real estate located in the city center or in an area with desirable infrastructure is usually more expensive. There are several factors related to location: - access to jobs and services - proximity to schools, kindergartens, shops and healthcare facilities - security and reputation of the region - good public transport connections.
2. Property type and size. Different types of real estate have different values. Apartments are usually cheaper than private houses, while luxurious and unique properties can be quite expensive. Size also plays a role: the price per square meter may be lower for larger areas, but the total price may be higher.

























































































